Om denna fastighet
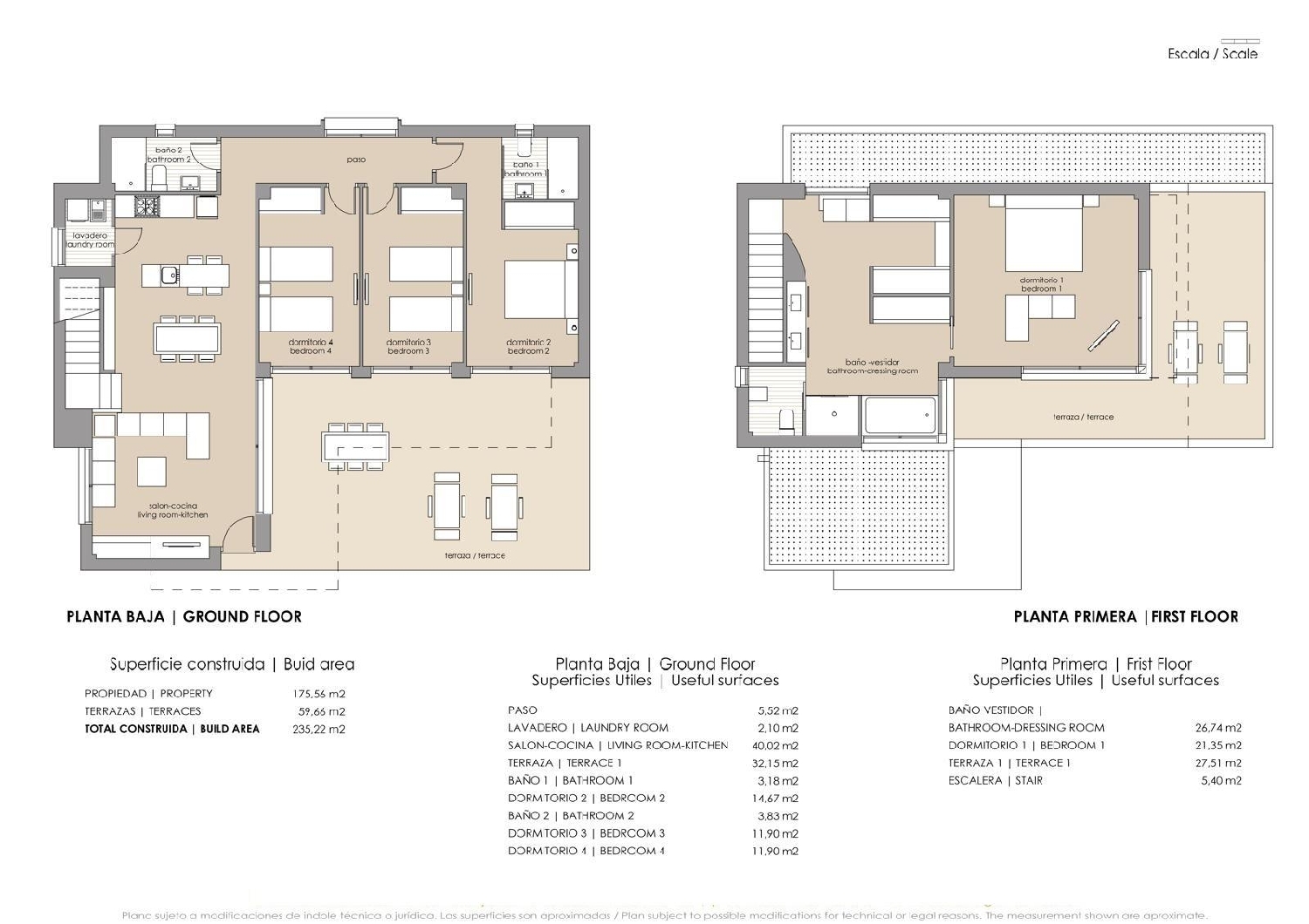
Nybyggda villor på Vistabella Golf Resort – Orihuela~~Upplev modernt medelhavsliv i hjärtat av Costa Blanca med dessa fantastiska nybyggda villor på Vistabella Golf Resort. Beläget mellan San Miguel de Salinas och Los Montesinos, i kommunen Orihuela, erbjuder detta exklusiva bostadsområde lyx, komfort och ett oslagbart läge för både golfentusiaster och livsstilsorienterade.~~Två olika villamodeller~Köpare kan välja mellan två eleganta modeller:~Enplansvillor med 3 sovrum, 2 badrum och takterrass.~Tvåvåningsvillor med 4 sovrum, 3 badrum och solterrass på första våningen.~~Båda modellerna ligger på tomter på cirka 300 m2 och har privat pool och parkering på tomten.~~Premiumkvalitet och modern komfort~Varje villa har lyxig finish, inklusive fullt installerad luftkonditionering, utrustat kök med vitvaror, utomhusbelysning, elektriska fönsterluckor och eleganta duschväggar i badrummen. Kombinationen av stil och funktionalitet garanterar ett hem som är både vackert och praktiskt.~~Exklusiv livsstil på golfresort~Vistabella Golf Resort är en gated community med en 18-håls golfbana, paddeltennisbanor, en bowlingbana, en stormarknad och ett brett utbud av barer och restauranger. Framtida uppgraderingar kommer att göra resorten till en riktig 5-stjärnig destination, med planerade tillägg som en champagnebar, sushibar, spahotell, konstgjord strand, tennisbana, fotbollsplan och gourmetbar.~~Förstklassigt läge på Costa Blanca~Resorten erbjuder utmärkt tillgång till regionens bästa stränder, golfbanor och tjänster. Avstånd till viktiga sevärdheter:~La Mata-stranden: 18 km~Guardamar del Segura-stranden: 20 km~Torrevieja: 15 km~Alicante flygplats: 55 km~Murcia flygplats: 68 km~Villamartín Golf: 12 km~Las Colinas Golf & Country Club: 14 km~~Ditt drömhem väntar~Oavsett om det är som permanentbostad, semesterhus eller uthyrningsinvestering, erbjuder dessa nybyggda villor på Vistabella Golf Resort exceptionellt värde i ett av Spaniens mest eftertraktade kustområden.~~Kontakta oss idag för att boka en visning och säkra din plats i detta lyxiga golfsamhälle.