Om denna fastighet
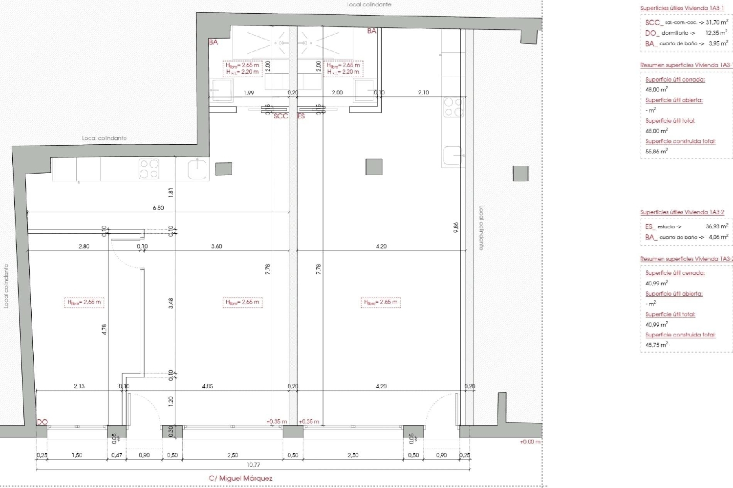
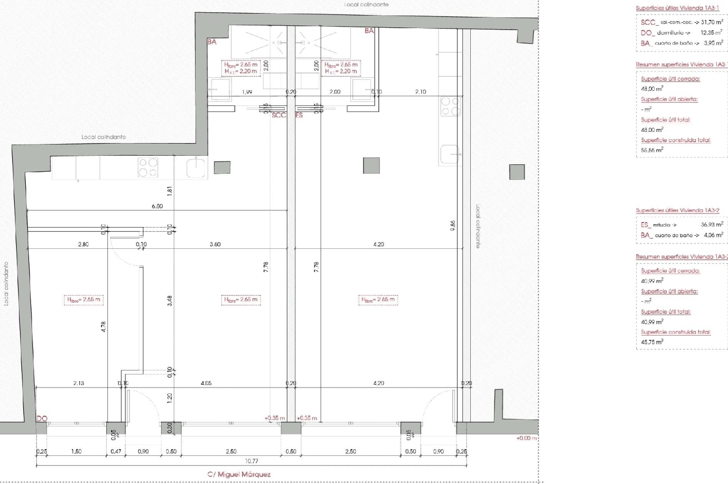
Kommersiella lokaler till salu 50 m från Fuengirolas strandpromenad Stor investeringspotential~~Investeringsmöjlighet i ett av Fuengirolas mest eftertraktade lägen: Calle Miguel Márquez, bara 50 meter från strandpromenaden.~~Kommersiella lokaler på 102 m2, för närvarande öppen planlösning, med ett pågående projekt för ändrad användning och avyttring med kommunfullmäktige.~~Projektet omfattar skapandet av:~• 1 enrumslägenhet~• 1 fristående studiolägenhet~~Ingår i objektet:~ Projektplan godkänd av arkitekten~ Illustrativa bilder genererade med AI som visar potentialen och det möjliga slutresultatet (ickekontraktuella renderingar)~~När omvandlingen är klar blir fastigheten ett utmärkt alternativ för:~✔ Långtidsuthyrning~✔ Medellångtidsuthyrning~✔ Individuell vidareförsäljning av enheter~✔ Investeringsstrategi med hög efterfrågan i ett utmärkt läge~~Strategiskt läge vid havet, med service, transport och ett väletablerat område med stark nationell och internationell efterfrågan.~~Ideal produkt för investerare som vill skapa värde från dag ett.~~För mer teknisk information och en uppskattad lönsamhetsstudie, vänligen kontakta oss.~~Det visade priset inkluderar inte skatter eller kostnader. En fastighetsöverlåtelseskatt (ITP) på 7 % kommer att tillämpas, utöver notarieavgifter (ca 0,3–0,5 %) och fastighetsregistreringsavgifter (ca 0,1–0,3 %) på försäljningspriset. De angivna beloppen är endast i informationssyfte och kan variera beroende på det specifika fallet.~~För denna fastighet kommer de ungefärliga kostnaderna att vara:~ITP: ([[använd formuläret]]) €~Notarieavgifter: Mellan 1 185 € (0,3 %) och 1 975 € (0,5 %)~Fastighetsregistreringsavgifter: Mellan 395 € (0,1 %) och 1 185 € (0,3 %)~~Köpet av denna fastighet medför inga fastighetsmäklaravgifter för köparen.